Доска объявлений

ДОСКА ОБЪЯВЛЕНИЙ

Подать Объявление Мои Объявления Поиск Объявления

Дома, хозяйства / Другое / Продают

Вернуться к списку объявлений
Закрыть карту
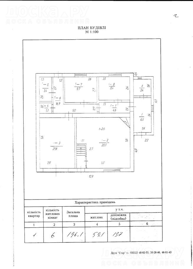
Продам в Железном Порту Херсонской обл. дом 2 этажа площадью 196 кв. м на участке площадью 25 соток. Стены - крымский камень облицован кирпичом с воздушным зазором. Перекрытие этажей - железобетонные плиты. В доме гараж, 8 раздельных комнат, кухня, 2 санузла, лоджия и балкон, камин. Участок расположен в 700-х метрах от моря. Электроснабжение 3-х фазное. Водоснабжение центральное, канализация сливная яма. Газ баллонный. На участке имеется беседка размером 6 х 4 м с барбекю, 2 летних душа с бойлером, 3 туалета и строение 5 комнат для отдыхающих. К дому примыкает небольшой домик 50 м. кв на 2-е комнаты с санузлом и кухней с отоплением. В доме отопления нет, есть отдельное помещение для котельной в доме. На участке есть несколько кирпичных вспомогательных помещений. Фронт участка шириной 32 м. имеет 2 въезда и вход. Большой фруктовый сад, огород, виноградник. Документы РФ к продаже готовы.

Фото:
Дома, хозяйства Другое, Фото
Дома, хозяйства Другое, Фото
Дома, хозяйства Другое, Фото
Дома, хозяйства Другое, Фото
Дома, хозяйства Другое, Фото
Дома, хозяйства Другое, Фото
Телефон: +7(979)06-3-*** Показать номер Все объявления с этим телефоном
E-mail: Отправить e-mailВсе объявления с этим E-mail адресом
Место:Другое

Распечатать
Отослать другу Дата: 27.08.2025 15:55
Напомнить Сообщить о нарушении
Доска Объявлений ©DOSKA.ru 2008 | Вопросы по размещению объявления | Правила объявлений | Сотрудничество | RSS